Правят нови 7 детски и 1 спортна площадка в Хасково

    8 нови площадки ще бъдат изградени в Хасково тази година - 7 детски и една спортна. Това става с промяна в капиталовата програма на общината, която ще бъде предложена за одобрение на сесията на ОбС в края на този месец. Това съобщи заместник-кметът Евгени Консулов на пресконференция днес.

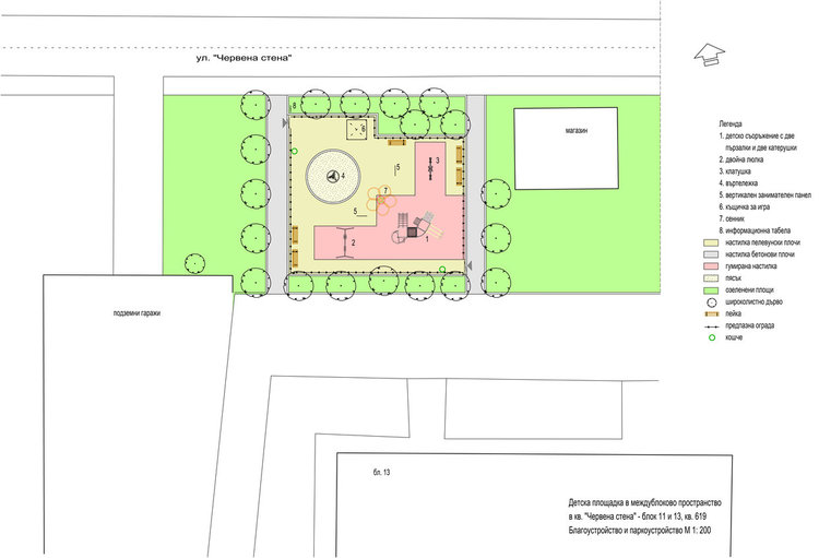
    Детските площадки ще са на “Червена стена”, между бл. 11 и 12, правоъгълника между улиците “Добруджа”, “Епископ Софроний” и “Веслец”, на ул. “Витоша”, ул. “Люлин”, ул. “Мадара”, на ул. “Пещера” в кв. Хисаря и в Болярово.

    В Болярово ще бъде облагороден и центъра, допълни Консулов. В квартал Хисаря пък досега не е правено почти нищо и новата площадка ще е хубава придобивка за хората там, каза зам.-кметът.

    Новата спортна площадка ще бъде между улиците “Каменна” и “Охрид”.

    Проектите на новите площадки можете да видите на снимките.

    Средствата за тях са осигурени, те са от спестените пари при търговете за обществени поръчки на общината, обясни Консулов. Той припомни, че само от търговете по програма “Региони в растеж” - за ремонт на училища и детски градини, са били спестени 3.2 млн. лв.

    На днешната пресконференция главният архитект Деляна Панайотова пък съобщи, че има готовност и за изграждане на парк зад ДНА. Там бившият военен имот бе прехвърлен на общината. “Направили сме промени в регулацията, всичко е готово за проектиране, но трябва да сме наясно с каква сума разполагаме, за да възложим изработването на проект”, обясни тя. По думите й обявената поръчка за подобен парк – в Стара Загора, с площ 40 дка, е била за 4 млн. лв. Площта на бившия военен имот, прехвърлен на община Хасково, е 50 дка.

    Тодор Кръшков

    Източник: Haskovo.NET

    Facebook коментари

    Коментари в сайта (15)

    • 1
      78
      789
      15 -2
      18:18, 21 юни 2017
      А ние в селата какво ще правим?f
      • Ид
        Идея
        5 -1
        21:33, 21 юни 2017
        За последните редици - хора и ръченици.
    • 2
      Iv
      iva
      1 -3
      18:25, 21 юни 2017
      а до бл. 24 в бадема
    • 3
      Оо
      Ооо чудо!
      14 -3
      18:50, 21 юни 2017
      Що за проектиране е това като не знаеш с каква сума разполагаш????? Чудоооо на архитектурната общинска мисъл
    • 4
      Да
      Даниела_1498072597
      6 -1
      22:16, 21 юни 2017
      А площадките в детските градини? Едва ли за някого е тайна, че са в окаяно състояние.
    • 5
      Аз
      Аз
      1 -2
      22:19, 21 юни 2017
      А в Бадема , нищо ли?
      • Ba
        badema
        5 -1
        23:35, 21 юни 2017
        В Бадема , Орфей на улица Одрин и Атон до дни ще бъдат избрани фирми кандидатствали по обществена поръчка за благоустрояване на междублокови пространства. В Бадема специално има игрище с изкуствена трева детски площадки и алеи цвеетя и т.н потърсете информацията в сайта, журналиститее се яхга постарали и я написаха.Аз съм в блок 4 и знам че е близо до нас но зоната която ще се благоуустрои е голяма
    • 6
      Та
      ТаШакаЗулу
      11 -4
      22:52, 21 юни 2017
      В Бадема 90 % гласувате за ДПС и БСП
      Нормално е да барате меча
    • 7
      Жи
      жител на Орфей 37
      4 -1
      10:34, 22 юни 2017
      Толкова е ужасен терена около "Орфей". Ламаринени гаражчета, един тон " магазинчета", неугледно междублоково пространство, ама на кого ли му пука.Все едно си в гето.
      Колко площадки ще правите на ул."Мадара"???
      • Че
        Четете!
        4 0
        10:40, 22 юни 2017
        И при вас ще се прави парк- до дни ще има избран изпълнител -пише го в сайта. Такак както в Бадема
    • 8
      Ив
      Иванов
      3 -2
      11:11, 22 юни 2017
      Искам да попитам, защо в града ни няма нито една спортна площадка за децата, която да е безплатна.Навсякъде платени.Такова безочие да събираш пари от децата , за да поиграят 1 час футбол или баскетбол или каквото и да е друго го има само в България.
    • 9
      Ра
      ранобудна
      2 -2
      11:51, 22 юни 2017
      Щом могат да се заделят пари от търговете, дали не могат да се намерят пари за децата от глоби на недобросъвестни граждани, които всяка сутрин най-невъзмутимо си разхождат домашните любимци на Кенана. Въпреки табелите за забрана по алеите и заплашителна глоба от 300.00 на никого не му пука. Всяка сутрин поне 40-50 кучета са "разходени" в парка. А иначе има охрана на две места-фирма "ММ" пише поне по къщичките им за подслон. Какво охраняват горките и те не знаят. Какво като забраната е на общината, това не е ли нарушение на обществения ред. Един- два дена да застанат сутрин и ще съберат парички, които може да стигнат и за безплатен лагер на някои деца- например инвалидизирани.
    • 10
      Ив
      Иван
      6 -2
      12:33, 22 юни 2017
      И аз като Иванов искам да попитам защо няма къде в прехваления ни град да водим децата ни да се учат да плуват с учител по плуване ,но не за 12 лева на час.Това е скъпо безобразие.Не е нормално,какви са тези цени.Никой не е помислил за децата,за спорта,ако плащат мама и тати,тогава детето ще спортува,ако не,няма да спортува.Вижте в София колко струва един час по плуване,5,6 лева,а в хасково,с малка буква,защото така искам,един час струва дявол и половина.Имало учител,който карал децата в Мин.бани,аз не искам някой да кара детето ми някъде по пътищата.Господин Консулов,помислете за това,но не пак за басейна на хотел Европа,за 12 лева на час,със студена вода зимата ,а нещо с абонаментни карти и добър инструктор по плуване,който наистина да учи децата ни да плуват,а не само да ти прибере парите.В Димитровград ли да ходим на басейн
    • 11
      Ка
      Казарма
      1 0
      15:57, 22 юни 2017
      А казармата кога ще я направят ? Само кучета и ц***** ,не може да се мине покрай нея ,поне да напръскат за кърлежи , жалка и страшна картина сме , това е в центъра на града как може 😠😠😠😠
    • 12
      Bu
      BULGARIA HACKERS
      1 0
      22:41, 22 юни 2017
      Искаме и на бадема 24 ! От 2011 година бяха каза ли , че ще ли да направят и на края нищо ...
    Последни новини